-
Gardner
![]()
-
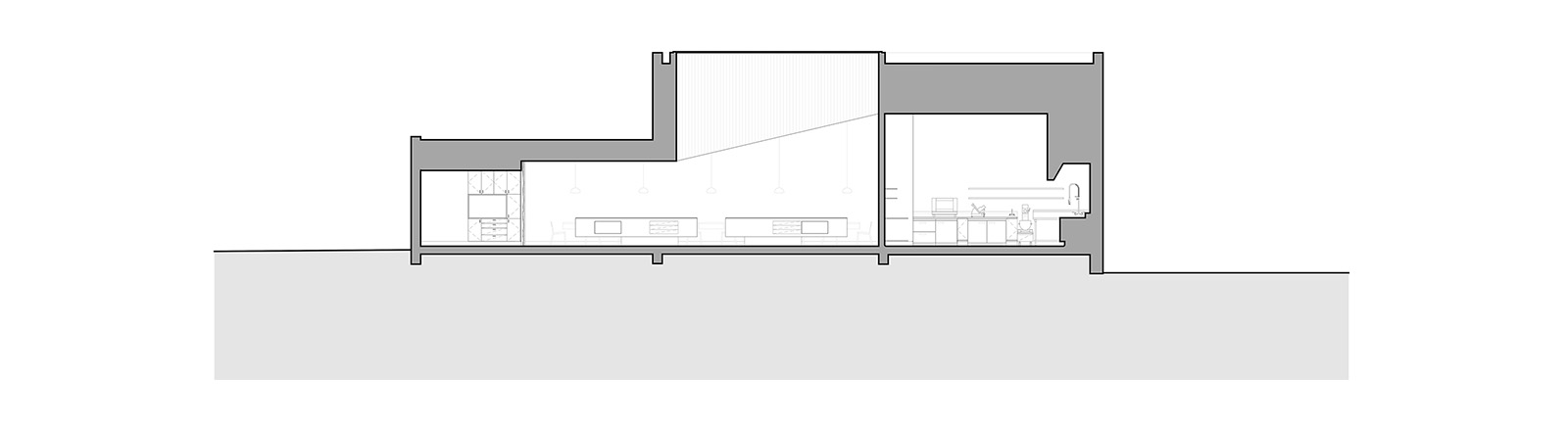
Gardner was a seasonally oriented restaurant inspired in part by the then-current culinary and cultural trends in Scandinavia. The simple and refined space was a testament to the power of rigorous design as the restaurant resided seamlessly in the unlikely shell of a utilitarian and somewhat degraded 1960s international-style post office.
![]()
![]()
![]()
![]()
-
Working with a restrained design palette, we introduced subtle interventions to facilitate a singular dining experience. We embraced the old post office space. Rather than emulating the 18th century interior of our clients’ principal restaurant reference, Noma, we distilled the experience they were chasing using the design language and materials already present.
![]()
![]()
![]()
![]()
-
With Gardner now a memory and its Scandinavian precedents shuttered as well, in 2021, we assisted celebrated chef Kevin Fink in transforming the space into a more casual concept – the wildly successful Guyanese restaurant, Canje. While the interior has changed, many of the subtle decisions that made Gardner an event are intact.
![]()
-









