-
Wellness Compound
![]()
-
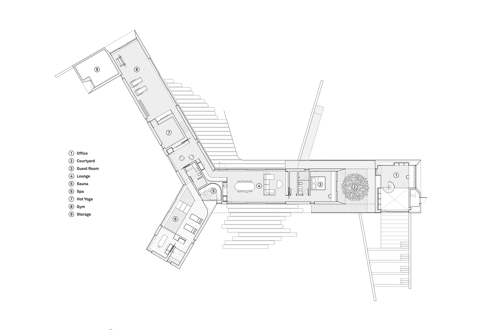
Equal parts spa, gym, apartment, office, and sunken library, the three-spoked design responds to the trees at the property.
The in-house renderings are likely the best we have produced to date.
![]()
![]()
![]()
![]()
![]()
-
Equal parts spa, gym, apartment, office, and sunken library, the three-spoked design responds to the trees at the property.
The in-house renderings are likely the best we have produced to date.





