-
Roam Ranch
![]()
-
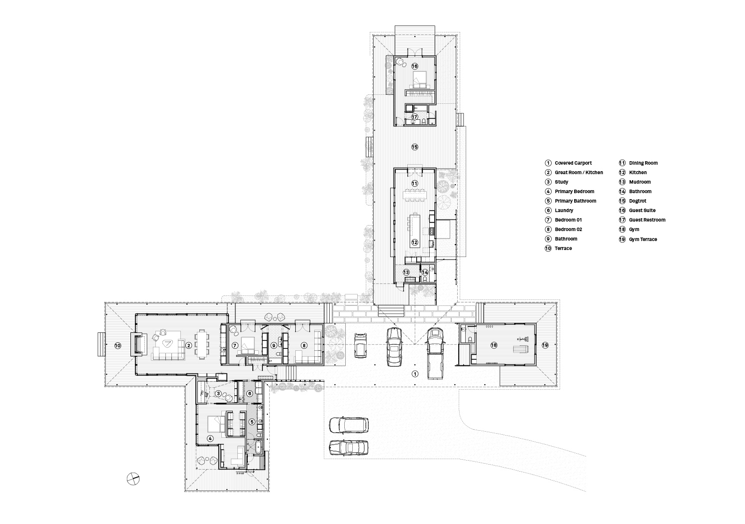
Roam Ranch is a primary residence for an entrepreneur couple engaged in regenerative agriculture on their ranch in Fredericksburg, Texas. We designed the house to allow for their business operations, including podcasts and educational events, while serving as the primary residence for them and their two young children.
We love Roam, in part, because it looks nothing like any project we had completed before (even though its underlying logic has much in common with our more stylistically modern projects). When you are there, it is truly hard to resist the long roof gesture insinuating itself into the Hill Country setting, its iconic lantern-like carport signaling something special within.
![]()
![]()
![]()
![]()
![]()
![]()
The cohesive nature of the design belies the fact that Roam Ranch is a renovation and substantial addition. Our clients wished to retain two buildings they had previously built on the property, but desired a compound that remained true to the preexisting central Texas vernacular. At the same time, they desired some of the more modern flourishes and amenities to which they had grown accustomed in their prior Baldridge-designed Austin home.
![]()
![]()
-
Before & After. If you look at the slight discoloration of the roof in the “after” photo above, you can see the original volumes in the completed project.
![]()
-









