-
Kimber Modern SoCo
![]()
-
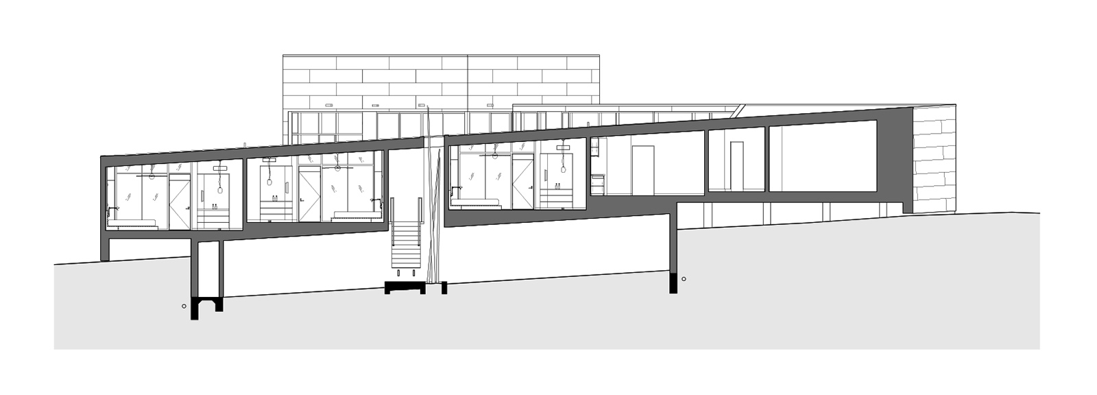
The Kimber Modern SoCo is a small Austin hotel one block from South Congress, one of Austin’s principal commercial and entertainment corridors. Aside from three sizeable live oaks, the small, precipitously sloped lot seemed an unlikely candidate for a hotel; it was overgrown with weeds and fronted a service alley for the neighboring bars, restaurants and retail establishments.
This project occupies an important place in our body of work. There have been changes over the years, but it remains a favorite among critics and travelers. It was not our first completed project, but in a very real sense Kimber Modern SoCo represented the mission statement of our first decade.
![]()
![]()
![]()
-
The sloping structure comprises discrete levels to create small nests of occupation, with a central courtyard acting as a quiet refuge from the neighborhood’s revelers, dumpsters and beer trucks. (Our 2006 schematic proposal model, above). Despite the growth of South Congress as a travel destination for shoppers and partiers, the design of the hotel is routinely praised for offering a peaceful and secluded alternative to the typical urban hotel experience.
![]()
![]()
-
Baldridge acted as the architect and contractor. The budget was tight and we were routinely questioning how to deliver the target experience affordably. It was a non-stop process of invention.
![]()
-






